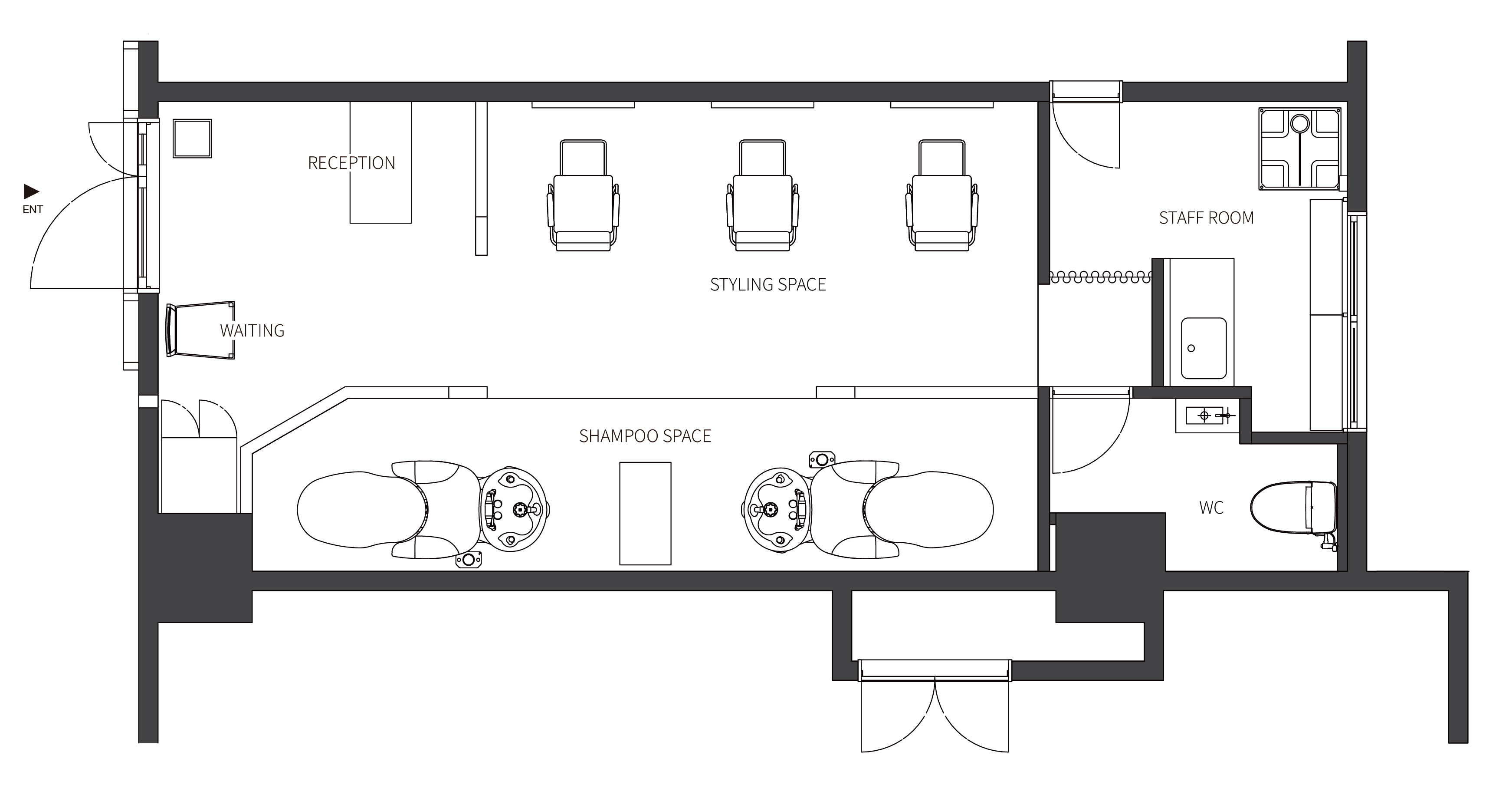
事例イメージ(esoLA)
店舗内装ドットコムについて
内装やデザインの比較検討・相見積もりを“無料で一括依頼”できます。要件をフォームで伝えるだけで、条件に合うデザイン・内装会社から提案が届きます。
当事例のデザイン・内装会社の情報
会社名:株式会社colmo design plus i
公式サイト:https://colmodesign.com/works/design/esola-2021/
コンテンツに関しての注意事項
当サイトに掲載されている施工事例、画像、ロゴ、企業情報等の知的財産権は、原則として各権利者(施工会社等)に帰属しております。基本的に、原則として著作権侵害には該当しない方法での掲載としておりますが、引用などをする場合も含めて、当サイトは、著作権法第32条に基づき、出典を明示したうえで正当な引用の範囲内にてこれらのコンテンツを掲載しています。
掲載している事例は、当サイト独自の編集・評価・紹介のために使用しており、当該コンテンツの利用をもって著作権の譲渡や利用許諾がなされるものではありません。
万が一、掲載内容に著作権上の問題がある場合、該当する著作権者様よりご連絡をいただければ、迅速に内容の確認および削除等の対応をいたします。該当する場合は、お手数ですが 【お問い合わせフォーム】 よりご連絡をお願いいたします。
利用者は、当サイトに掲載された画像・情報等を当サイト運営者の許可なく転載・再利用してはならないものとします。
なお、掲載画像は元サイトの仕様や閲覧環境(ブラウザ設定・通信状況等)により正常に表示されない場合があります。表示されない場合は再読み込みや別端末での閲覧をお試しください。















